編者按
近日,國家能(neng)源局(ju)發布《全國可(ke)再(zai)生(sheng)能(neng)源供(gong)(gong)(gong)暖典型案例(li)匯編(bian)》。該書是(shi)國家能(neng)源局(ju)為指導各地做(zuo)好可(ke)再(zai)生(sheng)能(neng)源供(gong)(gong)(gong)暖相關(guan)工作,及時總結推廣可(ke)再(zai)生(sheng)能(neng)源供(gong)(gong)(gong)暖的成功經驗和(he)做(zuo)法;是(shi)在(zai)(zai)前期征(zheng)集案例(li)的基礎上,整(zheng)理形成。以供(gong)(gong)(gong)大家在(zai)(zai)可(ke)再(zai)生(sheng)能(neng)源供(gong)(gong)(gong)暖工作中(zhong)參考。
太(tai)陽能光(guang)熱(re)(re)聯盟上報的多個太(tai)陽能供熱(re)(re)采暖(nuan)案例(li)被收錄。本篇將對(dui)太(tai)陽能光(guang)熱(re)(re)聯盟理事(shi)單位——北(bei)京(jing)啟迪清(qing)潔能源科(ke)技(ji)有限公(gong)司(si)全資子(zi)公(gong)司(si)華業(ye)陽光(guang)秦皇島(dao)太(tai)陽能“光(guang)熱(re)(re)+生物質”采暖(nuan)項目(mu)進行介(jie)紹。
一、項目基本情況
隨(sui)著大氣霧霾治(zhi)理(li)要求提(ti)高(gao),村(cun)鎮(zhen)建(jian)筑供熱(re)(re)面臨燃(ran)煤(mei)供暖(nuan)(nuan)污染較大的問(wen)題。為治(zhi)理(li)散煤(mei)燃(ran)燒、提(ti)高(gao)全市空氣質量(liang)與人民采暖(nuan)(nuan)質量(liang),打(da)造良好舒適(shi)的熱(re)(re)環境。村(cun)鎮(zhen)“熱(re)(re)源側”清潔化(hua)改造應因地制宜推廣淺(qian)層地熱(re)(re)能(neng)、空氣熱(re)(re)能(neng)、太(tai)陽能(neng)、生物質能(neng)等可再(zai)生能(neng)源分(fen)布(bu)式,多能(neng)源互補應用(yong)的新(xin)型取暖(nuan)(nuan)模(mo)式。
秦皇島市主(zhu)推(tui)“光(guang)熱(re)+”清潔供暖改(gai)造,根(gen)據重點區域地(di)理(li)條件、電(dian)(dian)網燃氣管網等敷設情況,注重改(gai)造成效,宜(yi)電(dian)(dian)則(ze)電(dian)(dian)、宜(yi)熱(re)則(ze)熱(re),選擇“光(guang)熱(re)+生物質”“光(guang)熱(re)+電(dian)(dian)”等不同清潔供暖方(fang)式(shi)。華業陽光(guang)在秦皇島的(de)(de)(de)“光(guang)熱(re)+生物質”項目共(gong)進行了(le)1200余戶,其中海(hai)港區繆(mou)莊,西田家溝和(he)新周莊安裝50 余戶,昌黎縣新集鎮尖角一村(cun)二村(cun)600余戶。用(yong)戶的(de)(de)(de)戶均面(mian)積(ji)(非采(cai)暖面(mian)積(ji)),其采(cai)暖面(mian)積(ji)控制在一間臥(wo)室(shi)一個客廳(ting)的(de)(de)(de)范圍大概30~40㎡。屬(shu)于典型(xing)的(de)(de)(de)戶用(yong)小面(mian)積(ji)采(cai)暖多能互補采(cai)暖系(xi)統。
二(er)、系統結構及(ji)原理
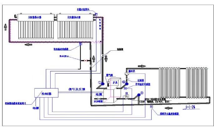
該“光熱(re)+生物質”項目(mu)戶用系統(tong)主要由生物質爐具(ju)、太陽(yang)能集熱(re)蓄熱(re)部分、控制器、循(xun)環管路構成(cheng)。
其(qi)(qi)中(zhong)太陽能集熱蓄熱部分:采用80支QB-SS-ALNx/Cu-47/58-1800-Z全玻(bo)璃真空(kong)太陽集熱管,和(he)(he)兩只160L保溫水箱(xiang)構(gou)成;搭配使用TH-NS12Z-Ⅶ生物(wu)質爐(lu)具和(he)(he)控制器使用。為小(xiao)型戶用多能互補系統。其(qi)(qi)安裝示意圖如下所示:

其設計理念(nian)為充分發揮多能(neng)(neng)互(hu)補的(de)優(you)勢,由于(yu)(yu)該系(xi)統屬于(yu)(yu)多能(neng)(neng)互(hu)補系(xi)統,各種能(neng)(neng)源(yuan)有相(xiang)應的(de)優(you)劣性,如太(tai)陽(yang)能(neng)(neng)綠色環(huan)保無污染,但是較分散、不(bu)穩定等;生物質(zhi)能(neng)(neng)源(yuan)環(huan)保高(gao)效,但是相(xiang)對熱(re)值較低、價格高(gao)。優(you)先使用(yong)太(tai)陽(yang)能(neng)(neng)熱(re)源(yuan)為屋內供(gong)熱(re),當太(tai)陽(yang)能(neng)(neng)熱(re)源(yuan)不(bu)能(neng)(neng)夠為屋內提供(gong)持續續熱(re)源(yuan)時,應使用(yong)爐具提供(gong)熱(re)量,使用(yong)戶以(yi)較少(shao)的(de)代價獲得(de)較高(gao)的(de)采(cai)暖體驗(yan)。
三、系統運行情況
為了了解項(xiang)目的(de)實(shi)際運(yun)行(xing)(xing)效果,華業(ye)陽(yang)(yang)光(guang)建立遠(yuan)程數據監控平臺(tai),將太(tai)陽(yang)(yang)能(neng)集熱(re)(re)(re)器側超(chao)聲熱(re)(re)(re)量表(biao)、生物質鍋爐側超(chao)聲熱(re)(re)(re)量表(biao)、室內外(wai)溫度與(yu)濕度、室外(wai)風速、太(tai)陽(yang)(yang)能(neng)輻射強度等用(yong)戶側系統(tong)(tong)(tong)運(yun)行(xing)(xing)參(can)數,實(shi)時遠(yuan)程上傳云端監控平臺(tai);通(tong)過平臺(tai)下載數據,對歷(li)史測試數據進行(xing)(xing)處理;分(fen)析計算(suan)系統(tong)(tong)(tong)太(tai)陽(yang)(yang)能(neng)保證率、太(tai)陽(yang)(yang)能(neng)供熱(re)(re)(re)量、太(tai)陽(yang)(yang)能(neng)集熱(re)(re)(re)效率、生物質供熱(re)(re)(re)量、水箱(xiang)散熱(re)(re)(re)情(qing)況(kuang)等基本參(can)數以(yi)評估系統(tong)(tong)(tong)運(yun)行(xing)(xing)效果。


測試期(qi)間(jian),室(shi)內(nei)溫(wen)度(du)和室(shi)外溫(wen)度(du)曲線圖如下(xia)圖,可知住戶室(shi)內(nei)溫(wen)度(du)在測試周期(qi)內(nei)基本高于(yu)16℃,供暖效果(guo)(guo)能(neng)達到國(guo)家(jia)規定,達到預期(qi)效果(guo)(guo)。且室(shi)內(nei)溫(wen)度(du)隨室(shi)外溫(wen)度(du)變化不大,說明(ming)“太(tai)陽能(neng)+生物質”供暖系統基本可以滿足(zu)用戶的用暖需(xu)求(qiu)。

2021年1月8日(ri)(ri)至2021年4月5日(ri)(ri),室外(wai)平(ping)均(jun)(jun)溫(wen)度為1.71℃,室內平(ping)均(jun)(jun)溫(wen)度為20.88℃,平(ping)均(jun)(jun)太(tai)(tai)(tai)陽能總(zong)輻射強度為16.03MJ/m²,太(tai)(tai)(tai)陽能平(ping)均(jun)(jun)保(bao)證率(lv)為46.20%,太(tai)(tai)(tai)陽能集熱(re)器集熱(re)效率(lv)43.50%,太(tai)(tai)(tai)陽能日(ri)(ri)平(ping)均(jun)(jun)得熱(re)量為84.16MJ,生物質日(ri)(ri)平(ping)均(jun)(jun)供熱(re)量為103.50MJ。
四、社會經濟效益分析
根(gen)(gen)據(ju)上(shang)面測(ce)試期(qi)間數據(ju)推算(suan),采暖(nuan)季(ji)日平均生物(wu)質(zhi)供熱(re)量約(yue)為(wei)(wei)(wei)122.40MJ,日平均太(tai)陽能供熱(re)量約(yue)為(wei)(wei)(wei)77.91MJ,系統日平均供熱(re)量約(yue)為(wei)(wei)(wei)200.31MJ,相當于每日減少(shao)9.76kg的標準煤(mei)燃燒。根(gen)(gen)據(ju)檢測(ce)數據(ju)與生物(wu)質(zhi)熱(re)值,生物(wu)質(zhi)鍋(guo)爐(lu)效率等推算(suan)可得,采暖(nuan)季(ji)共消耗生物(wu)質(zhi)1563.28kg(生物(wu)質(zhi)燃料(liao)質(zhi)量有差異(yi),會(hui)有一定誤差),該農戶生物(wu)質(zhi)燃料(liao)所(suo)需費用(yong)約(yue)為(wei)(wei)(wei)1406.95元(yuan)。
太陽(yang)能(neng)(neng)作(zuo)為一種資源豐富的(de)(de)清潔能(neng)(neng)源,考慮(lv)到太陽(yang)能(neng)(neng)取暖存在(zai)“間歇性”問題(ti),將(jiang)太陽(yang)能(neng)(neng)集熱器與生(sheng)(sheng)物質鍋爐(lu)聯合運(yun)行,確保(bao)用(yong)戶冬季(ji)采(cai)暖需求。其中(zhong),生(sheng)(sheng)物質是指通過光合作(zuo)用(yong)而形(xing)成的(de)(de)各種有(you)機體,是可(ke)(ke)轉化(hua)成替代(dai)常(chang)規(gui)化(hua)石(shi)燃料的(de)(de)可(ke)(ke)再生(sheng)(sheng)碳源。生(sheng)(sheng)物質能(neng)(neng)作(zuo)為綠色可(ke)(ke)再生(sheng)(sheng)能(neng)(neng)源具有(you)總量豐富、分(fen)布廣泛、污染低等特(te)點,特(te)別適合農(nong)村地區(qu)收集使用(yong)。在(zai)農(nong)村地區(qu)大規(gui)模使用(yong)“太陽(yang)能(neng)(neng)+生(sheng)(sheng)物質”供暖系統,可(ke)(ke)以減(jian)少二(er)氧化(hua)碳、硫(liu)化(hua)物等氣體的(de)(de)排放(fang),有(you)著較好(hao)的(de)(de)環境效益。
太陽能采暖(nuan)系統雖然初期投資(zi)較大,但(dan)在國家能源(yuan)結構調(diao)整、環境保護、改(gai)善(shan)農村生活條件及帶動(dong)農村經濟發(fa)展等方面具(ju)有較高的社會效益。
太陽能采暖系統作為一項(xiang)新能源(yuan)利用技術,符合國家資源(yuan)節約與環境保護(hu)的(de)基本(ben)國策,有(you)利于國家整體(ti)能源(yuan)結構的(de)調整。
在(zai)新農村的建設中,太陽能(neng)采暖作為新民(min)居建設的一項基本內容,對于改善(shan)廣大農民(min)居住生活(huo)條件(jian)、提高農民(min)對新能(neng)源的利用意(yi)識等方面能(neng)起到積(ji)極作用。
從長遠看(kan),隨(sui)著常(chang)規能源價格的(de)不斷上漲(zhang)及(ji)污(wu)染治理成(cheng)本的(de)大(da)幅度上升(sheng),太(tai)陽能采暖系統的(de)社會及(ji)經濟效益會更加明顯。
五、典型經驗和做法
秦皇(huang)島“太陽能+生物質”清潔取暖(nuan)(nuan)系(xi)統的(de)供暖(nuan)(nuan)項(xiang)目,主要技術優(you)勢有:
1、所使用“太陽能(neng)+生物質(zhi)”清潔取暖系統取暖效果良好,室(shi)(shi)溫(wen)水(shui)平較(jiao)(jiao)高,且天氣寒(han)冷時(shi)室(shi)(shi)內(nei)溫(wen)度(du)仍能(neng)維持在較(jiao)(jiao)高水(shui)平,室(shi)(shi)溫(wen)基本穩定,熱舒適性較(jiao)(jiao)好。
2、布置的(de)太陽能(neng)集熱(re)管較多,太陽能(neng)集熱(re)量也大,很大程度上利用了(le)太陽能(neng),節省(sheng)了(le)傳統(tong)能(neng)源的(de)消耗。
3、使(shi)用“太(tai)陽能+生物質”清潔取暖系統,能大量減少碳排放(fang),對節能減排,打贏藍天保(bao)衛戰(zhan)有重要意義。
目(mu)前(qian)已實施(shi)的(de)(de)太陽(yang)能采(cai)暖(nuan)系(xi)統具有(you)較高社會(hui)效益(yi),對于農村經濟的(de)(de)發展起著(zhu)極(ji)大(da)的(de)(de)促進作用,但(dan)存(cun)在著(zhu)投資(zi)相對較高、回收期(qi)較長的(de)(de)缺點,單純(chun)靠市場推(tui)廣存(cun)在著(zhu)相當的(de)(de)難(nan)度。目(mu)前(qian)太陽(yang)能采(cai)暖(nuan)雖(sui)然已有(you)一定的(de)(de)市場,但(dan)絕大(da)部分均為新農村建(jian)設工程(cheng),屬政府試(shi)點推(tui)廣補助項目(mu);若無政府補助情(qing)況(kuang)下,市場推(tui)廣將(jiang)很難(nan)進行。
農村(cun)住宅太(tai)陽能(neng)采暖工作(zuo)的(de)(de)實(shi)施(shi),將(jiang)極大的(de)(de)改善農村(cun)住宅的(de)(de)居住條件(jian),同時達(da)到解決農村(cun)用能(neng),調整能(neng)源(yuan)結構(gou)的(de)(de)目的(de)(de)。與此同時,隨(sui)著太(tai)陽能(neng)采暖的(de)(de)工作(zuo)推(tui)進,在(zai)居住條件(jian)的(de)(de)改善同時,將(jiang)極大的(de)(de)拉動農村(cun)的(de)(de)旅游(you)及相(xiang)關產業鏈經濟(ji)、改善農村(cun)的(de)(de)文化面(mian)貌,太(tai)陽能(neng)采暖成為解決農村(cun)能(neng)源(yuan)問題、調整農村(cun)能(neng)源(yuan)結構(gou)的(de)(de)重(zhong)要技術措施(shi)之(zhi)一。
六、問題和建議
根(gen)據目前(qian)的建設情況(kuang),提(ti)出(chu)如下建議:
1、用戶對生(sheng)物質燃(ran)料(liao)價格過高這一問(wen)題反映強烈,購(gou)入生(sheng)物質燃(ran)料(liao)價格900-1200 元不(bu)等,質量(liang)也參(can)差不(bu)齊(qi),希望政府(fu)在燃(ran)料(liao)方(fang)面給予一定支持(chi);
2、針對終端用(yong)戶、生產廠商制訂更加完善(shan)、合(he)理的(de)鼓(gu)勵(li)、支持(chi)政策,以促(cu)進(jin)太(tai)陽能采(cai)暖行業及市場(chang)的(de)良(liang)性發展。
3、選(xuan)擇有代(dai)表性的農村,如旅游(you)區(qu)或待開發的旅游(you)區(qu)域等作為推廣示范的試點,建(jian)設(she)太陽能(neng)(neng)采暖與生物質(zhi)能(neng)(neng)等多(duo)種可再生能(neng)(neng)源綜合利(li)用(yong)工(gong)程,以探(tan)索新農村建(jian)設(she)中合理的能(neng)(neng)源建(jian)設(she)模式,為農村能(neng)(neng)源結構建(jian)設(she)積累經驗。
聲明:(文(wen)章(zhang)來源:太陽能光熱(re)產業技術(shu)創新戰(zhan)略(lve)聯盟 ) 靈動核心環(huan)境服務平(ping)臺(tai)轉載(zai)此文(wen)目的為傳遞更(geng)多信息,如文(wen)章(zhang)來源注明錯誤或者涉及(ji)文(wen)圖(tu)內容(rong)版權及(ji)其他問題,可及(ji)時(shi)在(zai)頭條私(si)信我們,我們會第一時(shi)間刪(shan)除處理(li)。
陜煤集團榆林化學二期項目取
國家電投集團印發水、火、風版權聲明